
2 bedroom, 2 bathroom NEW BUILD semi detached bungalow on a 240m2 corner plot with optional swimming pool, in popular village of Frenaros - AZF103DP
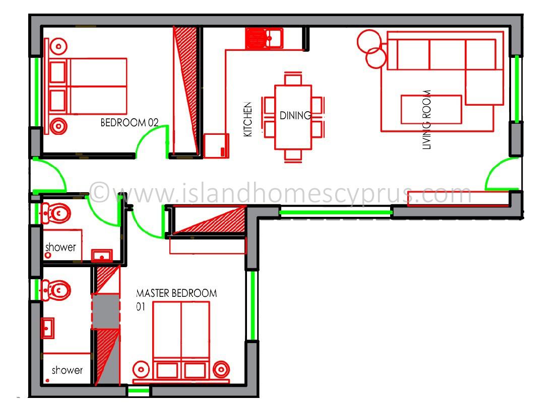
This delightful 2 bedroom family home is located on a complex of just 5 in total. The entrance leads into an open plan living, dining and kitchen area. Designed with family life in mind the kitchen area is a great size.
Both bedrooms are double in size and boast fitted floor to ceiling wardrobes. The master bedroom benefits from an ensuite shower room and there is an additional family shower room, finished in modern fittings and ceramics. The 240m2 plot also offers space to add an inviting swimming pool, sun terrace and even outdoor kitchen if you decide.
Located in a small cul de sac, this fabulous family home is offered for sale with off street parking. Situated in a quiet location in the village of Frenaros with an abundance of village amenities close by, this property would make a lovely retire to the sun home or a delightful holiday home as a village retreat. The town of Paralimni is around 5km away and the nearest beach just a 15 minute drive.
Site visits by appointment.
Price excludes VAT.
FRENAROS
Located inland from the tourist resorts of Ayia Napa and Protaras the village of Frenaros is a much sought after place to live for local people and immigrants. It still retains the traditional Cypriot village atmosphere with coffee shops and local tavernas. During recent years many new houses and luxury villas have been built around the outskirts whilst the village centre remains faithful to the Cypriot building style. Adding to the mixture of architecture the village has a few Byzantine churches which date back to the 12th century.
Frenaros is famous for Water Melons with the red soil perfect for growing the biggest juiciest specimens! A perfect place for residential living or a good base for a holiday, Frenaros is only 12 minutes from Ayia Napa, 5 minutes from Deryneia and just 40 minutes down the highway to Larnaca International Airport.
ABOUT THE FAMAGUSTA REGION
Whether you are planning to visit the Famagusta region of the Republic of Cyprus for the first time or you are already in love with the area, there is something here for everyone.
The area is not known as the Jewel of the Eastern Mediterranean` for nothing! From the stunning cliffs of Cavo Greko (the most Easterly point of Europe) to quaint inland villages, to the 44 (yes 44!) white sandy Blue Flag beaches, the area holds something for every palette. We have beautiful nature trails, water sports galore, amazing fresh cuisine, nightlife, one of the top waterparks in Europe, fishing harbours, a world class Marina and the list goes on and on! You are never far from anywhere in Famagusta, a maximum 15 minute drive to the nearest beach from even the most inland villages.
Thousands of expats of all nationalities have made Cyprus their home over the years due to the warm local welcome, fantastic climate and host of things to do. The bustling cities of Limassol, Larnaca and Nicosia are just over an hour away but here you can enjoy a more relaxed pace of life. Crime rates are amongst the lowest in Europe, English and Russian are widely spoken and there is always time for a chat, a coffee or a glass of wine in the sunshine. We look forward to introducing you to hidden gems of the area on your next visit.
ISLAND HOMES ESTATE AGENTS
Island Homes have been working with both local and overseas buyers and sellers for over 20 years. We specialise in property sales in the Famagusta region with seaside properties from Protaras to Ayia Napa; major towns including Paralimni and Deryneia and also covering all of the beautiful red soil villages` including Xylofagou, Vrysoulles, Frenaros, Avgorou, Dasaki Achna and Sotira.
All of our team live locally and have worked together for many, many years. We are also all immigrants to Cyprus and property owners ourselves so can guarantee that we have lived through the same experiences as that of our clients. We have in-depth knowledge of the area, the facilities, the amenities and, of course, every one of the properties that we advertise for sale.
Prior to advertising we undertake a full due diligence on every home to ensure that we can fully inform our clients about the legal status of each house or apartment.
Our reputation is hugely important to us so, for a truly personal experience, contact us and we will work together to find your dream home!
what3words /// bonanza.mango.shirk
Notice
Please note we have not tested any apparatus, fixtures, fittings, or services. Interested parties must undertake their own investigation into the working order of these items. All measurements are approximate and photographs provided for guidance only.
Utilities
Electric: Unknown
Gas: Unknown
Water: Unknown
Sewerage: Unknown
Broadband: Unknown
Telephone: Unknown
Other Items
Heating: Not Specified
Garden/Outside Space: No
Parking: Yes
Garage: No




